For sale - Commercial groundfloor in Huldenberg

€ 450.000

  • Commercial groundfloor for sale in Huldenberg
  • Commercial groundfloor for sale in Huldenberg
  • Commercial groundfloor for sale in Huldenberg
  • Commercial groundfloor for sale in Huldenberg
  • Commercial groundfloor for sale in Huldenberg
  • Commercial groundfloor for sale in Huldenberg
New
MAP
Get in touch

Gemeenteplein 23/001, 3040 Huldenberg

area liv.

205  m²

Spartak Demiri

Spartak Demiri

+32 2 731 07 07
Get in touch
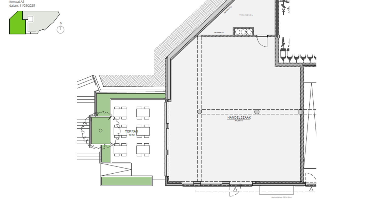
FOR SALE: Shell commercial ground floor of 205 m² with spacious terrace (42 m²) — Project Casino, Huldenberg (Gemeenteplein 23)

In the heart of Huldenberg, right on the Gemeenteplein, lies this exceptional commercial ground floor of approx. 205 m² featuring a wide shopfront and a large sunny terrace of 42 m².
Thanks to its central location, your business will enjoy maximum visibility, easy accessibility, and excellent connections to Leuven, Brussels, Tervuren, Zaventem, and the R0 ring road.
Shops, services and public transport are all within walking distance.


Key features




  • Commercial area of 205 m² with wide frontage




  • Sunny 42 m² terrace




  • Central location with excellent connections




  • Parking available nearby




  • Flexible layout and finishes tailored to your needs




Possible uses
Perfect for liberal professions (medical, paramedical, legal, notary, etc.), offices, retail, showroom or coffee/lunch bar (subject to permit).


Price
Shell condition: €450,000 (excluding VAT and registration fees)


Choose a shell commercial space you can design entirely according to your own concept, style and identity.
🌟 A unique opportunity to establish your business in a visible, central location with strong growth potential.
📞 02 731 07 07 ✉️ immo@home-consult.be🏡 Home Consult

Financial

price

€ 450.000

availability

At completion

Building

surface livable

205,00 m²

garden

no

surface garage

Division

terrace

no

Do you wish more information or a visite?

You must enter yoursalutation
You must enter yourfirst name
You must enter yourname
You must enter yourtelephone
You must enter youremail
You must enter yourmessage
You must agree to our terms and conditions