À vendre - Rez commercial dans Huldenberg

€ 450.000

  • Rez commercial à vendre à Huldenberg
  • Rez commercial à vendre à Huldenberg
  • Rez commercial à vendre à Huldenberg
  • Rez commercial à vendre à Huldenberg
  • Rez commercial à vendre à Huldenberg
  • Rez commercial à vendre à Huldenberg
Nouveau
MAP
Entrer en contact

Gemeenteplein 23/001, 3040 Huldenberg

surface habitable

205  m²

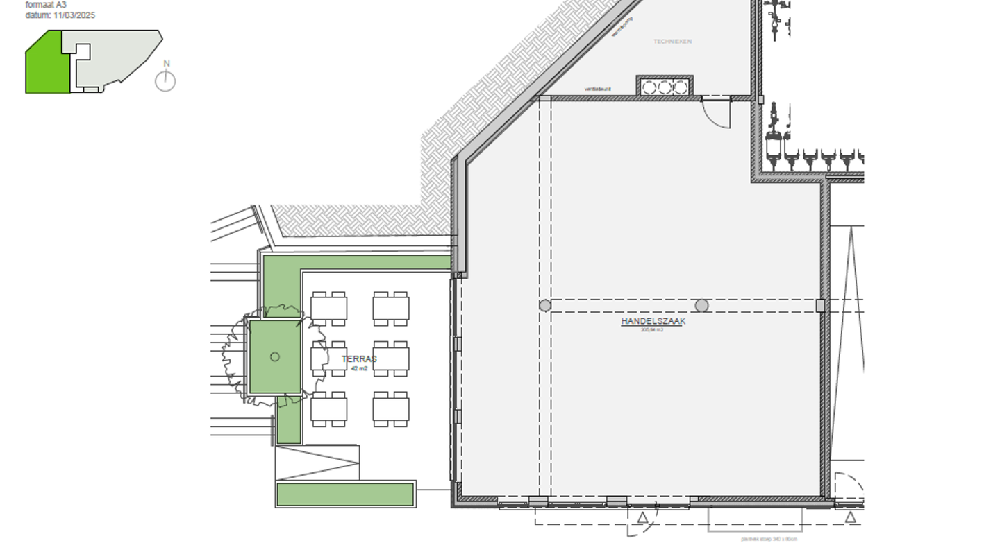
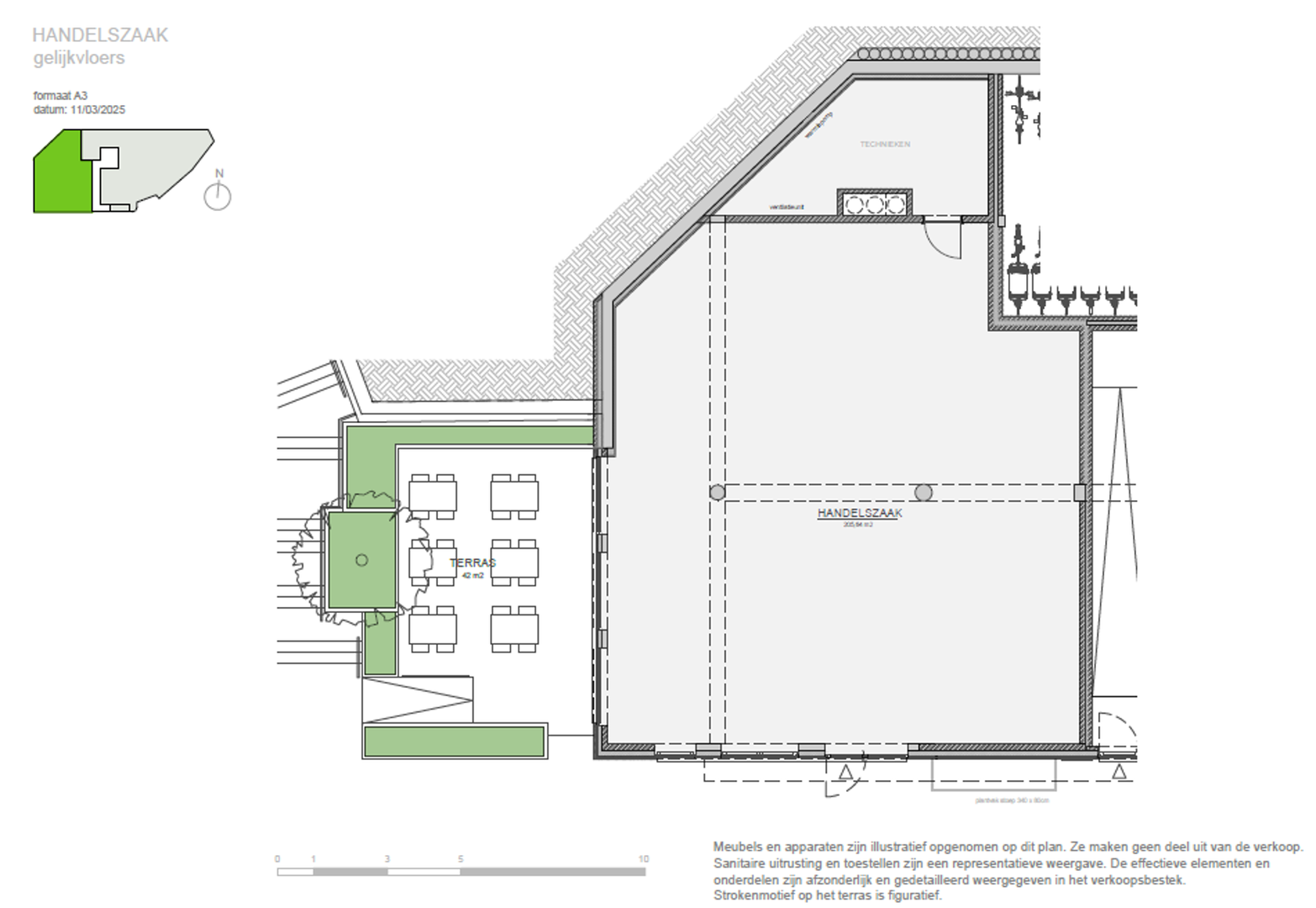
À VENDRE : Rez-de-chaussée commercial casco de 205 m² avec grande terrasse (42 m²) — Projet Casino, Huldenberg (Place Communale 23)

Au cœur de Huldenberg, sur la Place Communale, ce rez-de-chaussée commercial exceptionnel d’environ 205 m² offre une large vitrine et une spacieuse terrasse ensoleillée de 42 m². Grâce à son emplacement central, votre activité bénéficiera d’une visibilité optimale, d’un accès aisé et d’excellentes connexions vers Louvain, Bruxelles, Tervuren, Zaventem et le ring R0.
Tous les services, commerces et transports publics se trouvent à distance de marche.


Atouts




  • Surface commerciale de 205 m² avec large vitrine




  • Terrasse ensoleillée de 42 m²




  • Situation centrale avec excellentes liaisons




  • Parkings publics à proximité




  • Aménagement et finitions entièrement personnalisables




Affectations possibles
Idéal pour professions libérales (médicales, paramédicales, avocat, notaire…), bureaux, commerce de détail, showroom ou café/lunch bar (sous réserve d’autorisation).


Prix
Casco : 450.000 € (hors TVA et frais d’enregistrement)


Choisissez un espace commercial à aménager selon votre concept et votre style.
🌟 L’opportunité d’implanter votre activité dans un lieu central, visible et à fort potentiel de croissance.
📞 02 731 07 07 ✉️ immo@home-consult.be 🏡 Home Consult

Finances

prix

€ 450.000

disponibilité

A la livraison

Bâtiment

surface habitable

205,00 m²

jardin

non

surface garage

Aménagement

terrasse

non

Vous souhaitez plus d'informations ou une visite ?

Vous devez entrer votre salutation
Vous devez entrer votre prénom
Vous devez entrer votre nom
Vous devez entrer votre téléphone
Vous devez entrer votre email
Vous devez entrer votre message
Vous devez accepter nos conditions générales